Schritt für Schritt den Grundriss planen
Wer einen Grundriss planen möchte, legt damit den Grundstein für ein funktionierendes Haus. Ein guter Grundriss entscheidet darüber, ob Räume logisch angeordnet sind, Tageslicht optimal genutzt wird und sich das Gebäude langfristig an unterschiedliche Lebenssituationen anpassen lässt. In diesem Leitfaden zeige ich dir Schritt für Schritt, wie du einen Grundriss planst. Verständlich, praxisnah und unabhängig von speziellen Softwarekenntnissen.
Grundriss planen: Die wichtigsten Grundlagen
Schritt 1: Bedürfnisse und Lebensstil analysieren
Bevor du auch nur eine Linie zeichnest, solltest du dir über die grundlegenden Anforderungen klar werden. Denke dir deinen ganz persönlichen Alltag Schritt für Schritt durch.
Fragen zur Orientierung:
- Wie viele Personen leben im Haushalt (jetzt und in Zukunft)?
- Welche Räume sind zwingend notwendig (z. B. Homeoffice, Gästezimmer, Abstellraum)?
- Gibt es besondere Anforderungen (barrierefrei, altersgerecht, Arbeiten von zu Hause)?
- Wie wichtig sind Rückzugsorte vs. offene Bereiche?
Tipp: Schreibe eine Prioritätenliste. Das hilft später bei Entscheidungen.
Lade dir hier meine kostenlose Checkliste: Besprechung mit Architekt herunter.
Schritt 2: Grundstück und Rahmenbedingungen prüfen
Der beste Grundriss nützt wenig, wenn er nicht zum Grundstück passt.
Wichtige Punkte:
- Grundstücksgröße und Grundstücksform
- Hanglage
- Himmelsrichtungen (Sonne, Verschattung)
- Bebauungsplan / Bauordnung
- Abstandsflächen und Baugrenzen
- Zufahrt, Nachbarbebauung, Aussicht
Merke: Der Grundriss passt sich dem Grundstück an, nicht umgekehrt.
Schritt 3: Funktionsbereiche definieren
Teile das Gebäude gedanklich in Zonen ein:
- Öffentlicher Bereich: Wohnen, Essen, Küche
- Privater Bereich: Schlafzimmer, Kinderzimmer, Bad
- Servicebereich: Technik, Abstellräume, Flur, WC
Diese Zonierung hilft, die Wege kurz zu halten und Nutzungskonflikte zu vermeiden. Oft sind der öffentliche Bereich und private Bereich in verschiedenen Geschossen angeordnet. So kommen wir unserem Ziel Schritt für Schritt den Grundriss planen immer näher.

Grundriss planen Schritt für Schritt – die wichtigsten Grundlagen
Einen Grundriss Schritt für Schritt zu planen bedeutet, systematisch vorzugehen: von den eigenen Bedürfnissen über das Grundstück bis hin zur Raumaufteilung. Wer den Grundriss plant, ohne diese Grundlagen zu berücksichtigen, riskiert später teure Umbauten und unnötige Kosten.
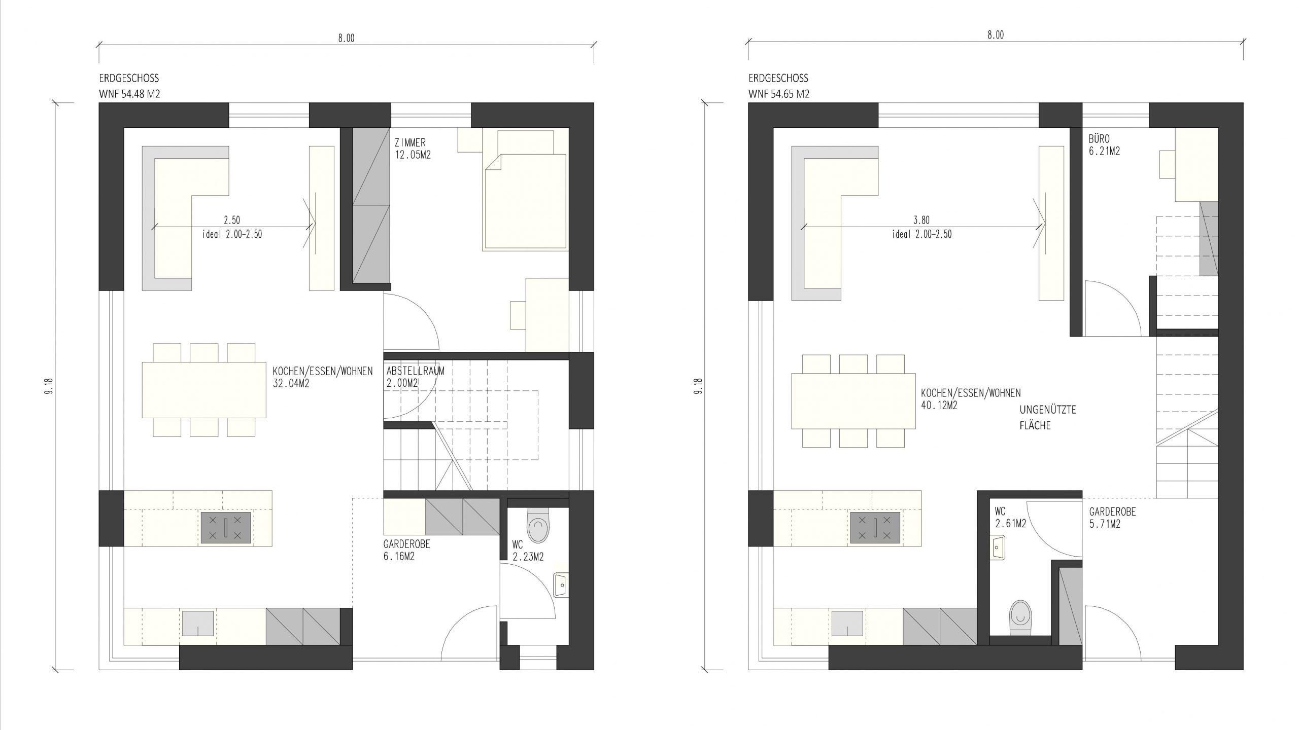
Schritt 4: Raumgrößen realistisch festlegen
Wer einen Grundriss planen möchte, sollte immer zuerst die eigenen Bedürfnisse analysieren. Viele Grundrissprobleme entstehen durch falsch eingeschätzte Raumgrößen.
Orientierungswerte für Häuser mit 110 m2 bis 150 m2:
- Wohnzimmer: 25–35 m²
- Küche: 10–15 m² (offen etwas mehr)
- Schlafzimmer: 12–16 m²
- Kinderzimmer: 10–14 m²
- Bad: 6–10 m²
Tipp: Plane von innen nach außen. Vom Bedarf zur Gesamtfläche. Die Anzahl und Größe der Räume ergibt dann die gewünschte Gesamtfläche.

Schritt 5: Wege und Erschließung planen
Flure sind notwendig um einen Grundriss zu planen, sollten aber effizient gestaltet sein.
Achte auf:
- Kurze, logische Wege
- Keine Durchgangszimmer
- Klare Trennung von Privat- und Wohnbereichen (siehe Schritt 3)
Ziel: Möglichst viel nutzbare Fläche, möglichst wenig Verkehrsfläche.
Schritt 6: Möblierung mitdenken
Ein Grundriss funktioniert nur, wenn auch Möbel sinnvoll Platz finden.
- Türen und Fenster berücksichtigen
- Bewegungsflächen einplanen
- Stauraum nicht vergessen
Tipp: Plane Möbel von Anfang an ein, das entlarvt Planungsfehler schnell.
Bei diesen Küchenvarianten sind die beiden Varianten links sinnvoller geplant und holen das maximale an Funktion und Stauraum aus der Fläche heraus. Die beiden Varianten auf der rechten Seite wirken zwar großzügiger, verschwenden aber nur Fläche, da die Wege zwischen den Funktionen zu weit sind.

Schritt 7: Licht, Blickbeziehungen und Ausrichtung
Tageslicht ist ein zentraler Qualitätsfaktor.
- Wohnräume nach Süden / Westen
- Schlafräume eher nach Osten
- Nebenräume nach Norden
- Sichtachsen gezielt einsetzen
Gute Grundrisse fühlen sich größer an, als sie tatsächlich sind.
Lies hier mehr zu diesem Thema: 5 häufige Fehler bei der Grundrissplanung.
Schritt 8: Flexibilität für die Zukunft einplanen
Lebenssituationen ändern sich.
- Räume multifunktional nutzbar machen
- Trennwände statt tragender Wände
- Reserveflächen vorsehen
Ein flexibler Grundriss spart langfristig Umbaukosten.
Schritt 9: Entwurf prüfen und optimieren
Denke den Grundriss kritisch durch:
- Stimmen die Wege?
- Gibt es tote Ecken?
- Funktioniert der Alltag?
Lass den Entwurf auch von einer außenstehenden, aber vertrauten, Personen prüfen. Frag nicht zu viele unterschiedliche Personen. Jeder hat andere Lebensweisen und Vorlieben. Zu viele Meinungen können auch verunsichern.
Schritt 10: Nächster Schritt: Professionelle Planung
Ein selbst geplanter Grundriss ist eine ausgezeichnete Basis. Für Genehmigungen (Österreich) und Ausführungen ist jedoch professionelle Unterstützung durch Architekten oder Planer unerlässlich.
Häufige Fragen zur Grundrissplanung (FAQ)
Wie plane ich einen Grundriss richtig?
Ein guter Grundriss entsteht, wenn Bedürfnisse, Grundstück und Raumfunktionen systematisch aufeinander abgestimmt werden. Wichtig sind kurze Wege, gute Belichtung und realistische Raumgrößen.
Welche Fehler passieren bei Grundrissen am häufigsten?
Zu kleine oder große Räume, zu viel Verkehrsfläche, fehlender Stauraum und eine falsche Ausrichtung zur Sonne zählen zu den häufigsten Fehlern.
Lies dazu hier weiter: 5 häufige Fehler bei der Grundrissplanung
Kann ich meinen Grundriss selbst planen?
Ja, für die Konzeptphase ist das sinnvoll. Für Genehmigung und Ausführung sollte jedoch immer eine Fachperson hinzugezogen werden.
Fazit
Wer seinen Grundriss planen möchte und dabei strukturiert vorgeht, vermeidet typische Fehler und schafft eine solide Grundlage für ein langfristig funktionierendes Zuhause.
Weiterführend: In meinem Planungsratgeber zeige ich typische Grundrissfehler und konkrete Lösungsbeispiele aus der Praxis.
Lies hier weiter: 5 häufige Fehler bei der Grundrissplanung
Lade dir hier meine kostenlose Checkliste: Besprechung mit Architekt herunter.
